Gran villa con una ubicación atractiva en Torrevieja
Piscina privada, gran jardín y 4 dormitorios. Ubicación atractiva.
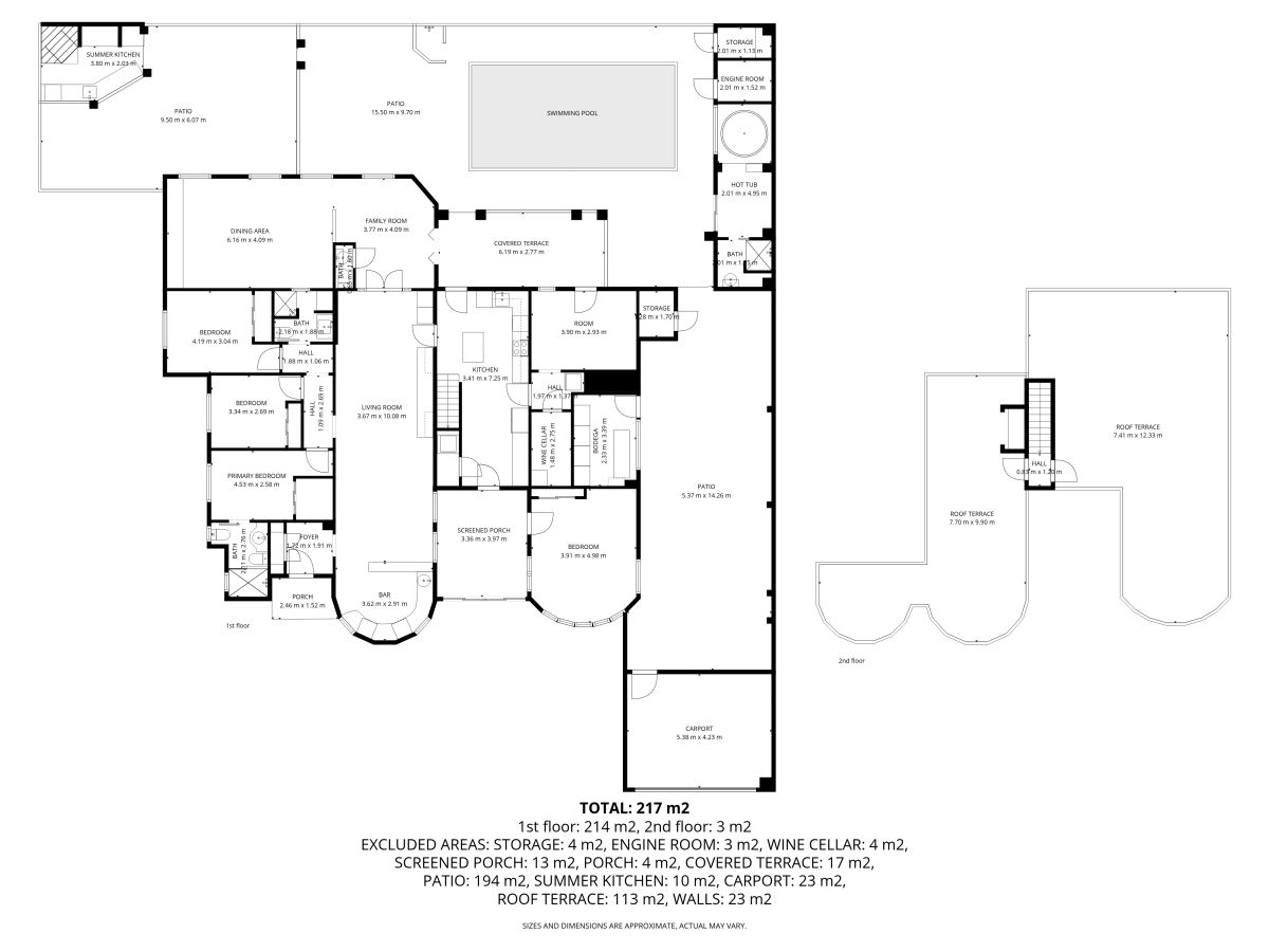
Dormitorios
Baños
Tamaño
Zona exterior
Piscina
Km a la playa
<
Km al aeropuerto
Visita
Las visitas se organizan de forma individual y continua. Si se encuentra en el extranjero, podemos organizar una visita virtual por vídeo.
Descripción
Egenskaper
Beskrivelse
Stor villa med attraktiv plassering i Torrevieja. 4 soverom, privat basseng og store uteområder
Velkommen til denne fantastiske villaen i det ettertraktede området Torrevieja. Denne romslige eiendommen tilbyr en ideell kombinasjon av komfort, privatliv og bekvemmelighet, perfekt for deg som søker en romslig villa med plass for hele familien på Costa Blanca.
Denne imponerende villaen strekker seg over et betydelig boareal og tilbyr både en romslig stue og spisestue. Videre har villaen fire romslige soverom, ett kontor og fire moderne bad, noe som sikrer god plass og komfort for hele familien eller gjester. De generøse uteområdene inkluderer en innbydende privat svømmebasseng, utekjøkken med grill, solrike terrasser og flere flotte sitteområder. Et perfekt sted for avslapning og sosiale sammenkomster under solen.
Eiendommen ligger i et etablert og rolig boligområde i Torrevieja, preget av villabebyggelse og velholdte hager. Her kan du nyte fredelige omgivelser samtidig som du har kort vei til alt du trenger.
Torrevieja er en pulserende kystby kjent for sine vakre strender, salte innsjøer og et bredt utvalg av restauranter, butikker og fritidsaktiviteter. Med kun 3 km til nærmeste strand og 40 km til flyplassen, er beliggenheten optimal for både permanent bosetting og ferieopphold.
Fremhevede egenskaper
- Privat svømmebasseng
- Romslige uteområder på 374m2
- 4 soverom og 4 bad
- Kort avstand til strand (3 km)
- Etablert og rolig boligområde
- Enkel tilgang til Torreviejas fasiliteter
Denne villaen representerer en unik mulighet til å sikre deg en luksuriøs og avslappet livsstil i Spania. Kontakt oss for mer informasjon eller for å avtale en visning!
Colocación
Mapa
Elija un agente que pueda mostrar muchas buenas referencias
Solo tenemos buenas palabras que decir sobre el seguimiento durante todo el proceso de adquisición de un apartamento en España. El seguimiento después de la compra ha sido del mismo alto nivel. Servicio de primera clase de una empresa profesional y adecuada. ¡¡Muy recomendable!!
⭐⭐⭐⭐⭐
Recomendamos Soleada Eiendom y estamos muy contentos con Hans Kristian. Nos ha ayudado en todo el proceso de compra de la vivienda y ha hecho un buen seguimiento. Nos hemos sentido seguros y atendidos durante todo el proceso.
⭐⭐⭐⭐⭐
Recomiendo encarecidamente a Hans Kristian y Soleada. Tienen mucho conocimiento y simplificaron al máximo la venta de nuestra casa en España. Un proceso impecable y eficiente de principio a fin. ¡Recomendados!😊
⭐⭐⭐⭐⭐
Estamos muy contentos con Soleada, ya que compramos nuestra primera vivienda en San Fulgencio. Hans Kristian nos ha acompañado en todo momento y hemos estado seguros durante todo el proceso. ¡Muy recomendable!
⭐⭐⭐⭐⭐









